This superb development offers the very best in design and finishes, with these homes located in the very popular suburb of Old Beach, all with gorgeous water views across the Derwent River to Mount Wellington and beyond.
These homes offer a refreshing quality of finishes, with generous spaces in all areas of each home. Built to maximise views and sunshine, these homes are all located on good sized blocks with fully fenced, private yards and generous double carport with visitor parking. The views from these lovely homes can never be built out, being adjacent to the park, so you can continue to enjoy for years to come.
Modern and stylish is the best way to describe these homes, featuring black steel and timber details with grey accents on the exterior. Very Low maintenance to look fabulous for years.
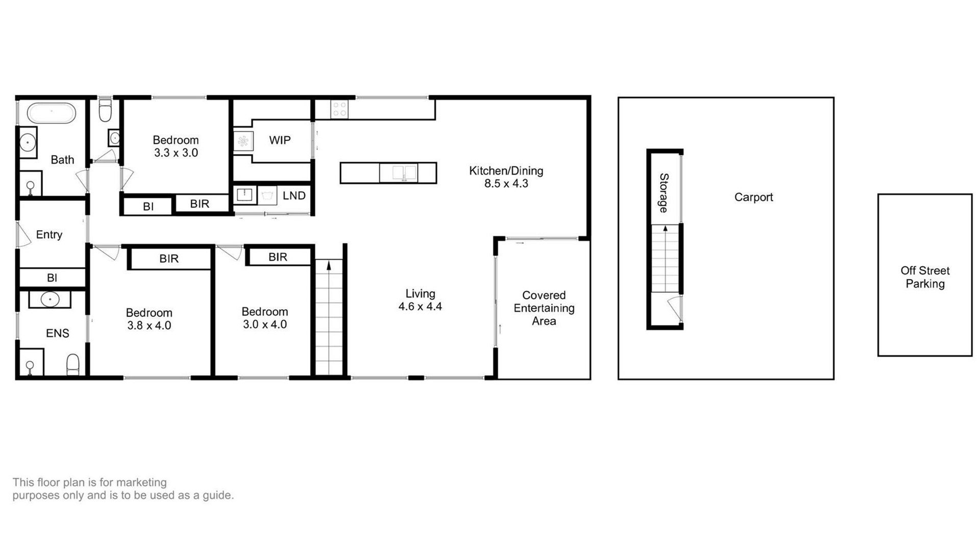
Downstairs, you will find two bedrooms with built in robes, fully carpeted. There is an immaculate separate bathroom and well designed laundry, leading out into back yard.
You ascend the gorgeous Tassie oak staircase to the elevated living areas on the first floor to enjoy the amazing vistas.
The master bedroom and ensuite, kitchen / dining and lounge area, occupy this generous part of each home. Beautiful large windows frame the space with additional clerestory windows for even more light. The timber flooring continues into the living area, spilling out onto the spacious glass framed deck.
Beautiful tactile surfaces make these homes stand out, with timber floors in living areas, stone bench-tops, all contributing the the high end feel of each home. Each of the bathrooms are immaculately finished with abundant rain showers, gorgeous tiling and feel very opulent.
Discover your dream home in this stunning newly built 6.3 Energy rated executive town house. Combining modern elegance in a fantastic location, in the rapidly growing and highly sought-after New Norfolk, this beautifully designed town house offers a perfect blend of modern and effortless living.
Brand new with high-end comfort in mind, it maximizes space while maintaining a low-maintenance lifestyle. From the moment you walk in, you'll be welcomed by a sunlit, open-plan layout featuring timber accents, a reverse cycle heat pump, and a seamless flow from living to dining to a chef-inspired kitchen.
Enjoy cooking with modern appliances, sleek cabinetry, and the added convenience of a large walk-in pantry. The thoughtfully designed floor plan places the generously sized master bedroom-featuring a walk-in robe and sophisticated ensuite along with a further two bedrooms including built-ins and experience spa-like serenity in the sleek, modern bathroom equipped with top-quality fixtures and finishes.
There is a great laundry that includes a utility cupboard. The deck is the perfect space for entertaining family and friends, with seamless flow between the living area.
Perfectly positioned this standalone residence just minutes from the vibrant township of New Norfolk township ensures convenience is truly at your doorstep and being approx. only 35 minutes to Hobart's CBD, this newly built residence offers a lifestyle of ease, comfort, and modern style. Whether you're a professional seeking a peaceful retreat, a downsizer craving modern convenience, or a savvy investor looking for strong growth potential-this property ticks all the boxes.
Set in a prestigious new homes area in Old Beach.
One of the few remaining properties in the estate!
Surrounded by executive homes, with beautiful views of Mount Wellington and the water that can be admired from the open plan living area. Complimented by a designer kitchen with stone bench tops, European appliances, alfresco dining and family area. Enter the master bedroom with ensuite and walk in robe, walk in shower with heated floor tiles and separate bath.
The home is set on a 1000m2 flat block with a landscaped front and back yards.
This is an exceptional brand-new home with stunning views, ready to move in to within weeks and we’re sure a property of this caliber won’t be available long!
Set in a prestigious new homes area in Old Beach. One of the few remaining properties in the estate!
Surrounded by executive homes, with beautiful views of Mount Wellington and the water that can be admired from the open plan living area. Complimented by a designer kitchen with stone bench tops, European appliances, alfresco dining and family area. Enter the master bedroom with ensuite and walk in robe, walk in shower with heated floor tiles and separate bath.
The home is set on a 1000m2 flat block with a landscaped front and back yards.
This is an exceptional brand-new home with stunning views, ready to move in to within weeks and we’re sure a property of this caliber won’t be available long!