35 Lower Road, New Norfolk

Discover your dream home in this stunning newly built 6.3 Energy rated executive town house.

PROPERTY:

Residental Development

Suburb:

New Norfolk

#statewidecontructions #projectdevelopment #tasmanianowned #newnorfolk #propertydevelopmenttasmania

35-Lower-Road-02
35-Lower-Road-03
35-Lower-Road-04
35-Lower-Road-05
35-Lower-Road-07
35-Lower-Road-08
35-Lower-Road-09
39-Lower-Road-05
35-Lower-Road-01

Tasmanian property Development

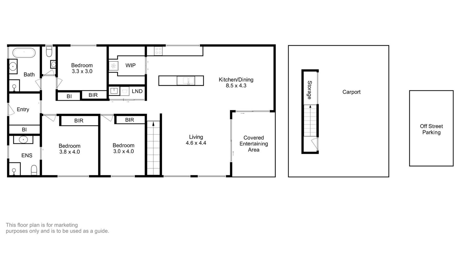
Discover your dream home in this stunning newly built 6.3 Energy rated executive town house. Combining modern elegance in a fantastic location, in the rapidly growing and highly sought-after New Norfolk, this beautifully designed town house offers a perfect blend of modern and effortless living.

Brand new with high-end comfort in mind, it maximizes space while maintaining a low-maintenance lifestyle. From the moment you walk in, you’ll be welcomed by a sunlit, open-plan layout featuring timber accents, a reverse cycle heat pump, and a seamless flow from living to dining to a chef-inspired kitchen.

Enjoy cooking with modern appliances, sleek cabinetry, and the added convenience of a large walk-in pantry. The thoughtfully designed floor plan places the generously sized master bedroom-featuring a walk-in robe and sophisticated ensuite along with a further two bedrooms including built-ins and experience spa-like serenity in the sleek, modern bathroom equipped with top-quality fixtures and finishes.

There is a great laundry that includes a utility cupboard. The deck is the perfect space for entertaining family and friends, with seamless flow between the living area.

Perfectly positioned this standalone residence just minutes from the vibrant township of New Norfolk township ensures convenience is truly at your doorstep and being approx. only 35 minutes to Hobart’s CBD, this newly built residence offers a lifestyle of ease, comfort, and modern style. Whether you’re a professional seeking a peaceful retreat, a downsizer craving modern convenience, or a savvy investor looking for strong growth potential-this property ticks all the boxes.